In het hart van de vallei en omgeven door wijngaarden, amandelbomen en zachte heuvels, bieden deze nieuwbouwvilla’s in Aspe een rustige en lichte levensstijl.
Er zijn ook percelen beschikbaar in charmante dorpjes zoals Pinoso, La Romana of Hondón de las Nieves.
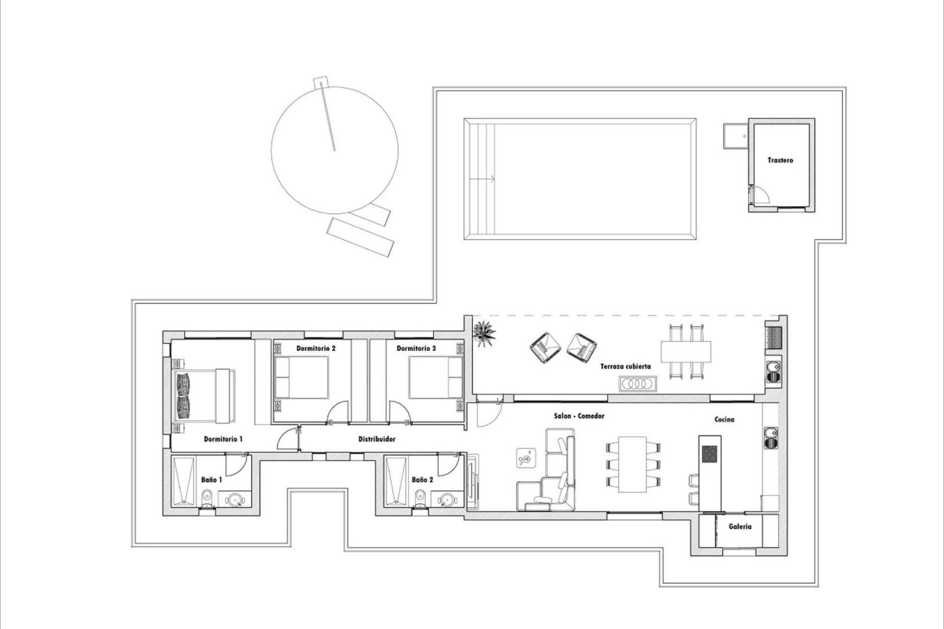
Je kunt kiezen uit verschillende aanpasbare modellen, met 2, 3 of 4 slaapkamers, gebouwd op een plaat of met een constructie (ideaal voor woningen met twee verdiepingen). Elk project wordt aangepast aan jouw wensen en het gekozen landelijke perceel, altijd met een minimale oppervlakte van 10.000 m², zodat je kunt genieten van ruimte en privacy op het platteland.
De definitieve prijs wordt bepaald op basis van het gekozen model en perceel, met altijd garantie op kwaliteit in materialen, afwerking en ontwerp. LET OP: HET PERCEEL IS NIET BIJ DE PRIJS INBEGREPEN.
Inclusief kenmerken:
Omheind perceel van 2.500 m² met automatische schuifpoort en motor inbegrepen.
Privézwembad van 8x4 m met twee LED-lampen.
Berging voor het zwembadpomp en buitendouche.
Aluminium schrijnwerk met gemotoriseerde rolluiken en Climalit-glas.
Ingebouwde kasten in slaapkamers.
Badkamers uitgerust met sanitair, douchebak met scherm, meubel met ingebouwde wastafel en LED-spiegel.
Volledig ingerichte keuken met Silestone of vergelijkbaar werkblad.
Videofoon met beeld.
Voorinstallatie voor kanaalairconditioning (warm/koud).
Warmwatersysteem via aerothermie.
Voorinstallatie voor toekomstige zonnepanelen.
Beleef de echte Mediterrane levensstijl in Aspe, op slechts 15 minuten van Elche, 25 minuten van Alicante, met de luchthavenNeem contact op met Alicante Maravillas en begin met het bouwen van het leven waarvan je altijd hebt gedroomd.