Set in the heart of the valley and surrounded by vineyards, almond trees, and rolling hills, these off plan detached villas in Aspe offer a bright, peaceful lifestyle immersed in nature. Similar plots are also available in the charming nearby towns of Pinoso, La Romana, and Hondón de las Nieves.
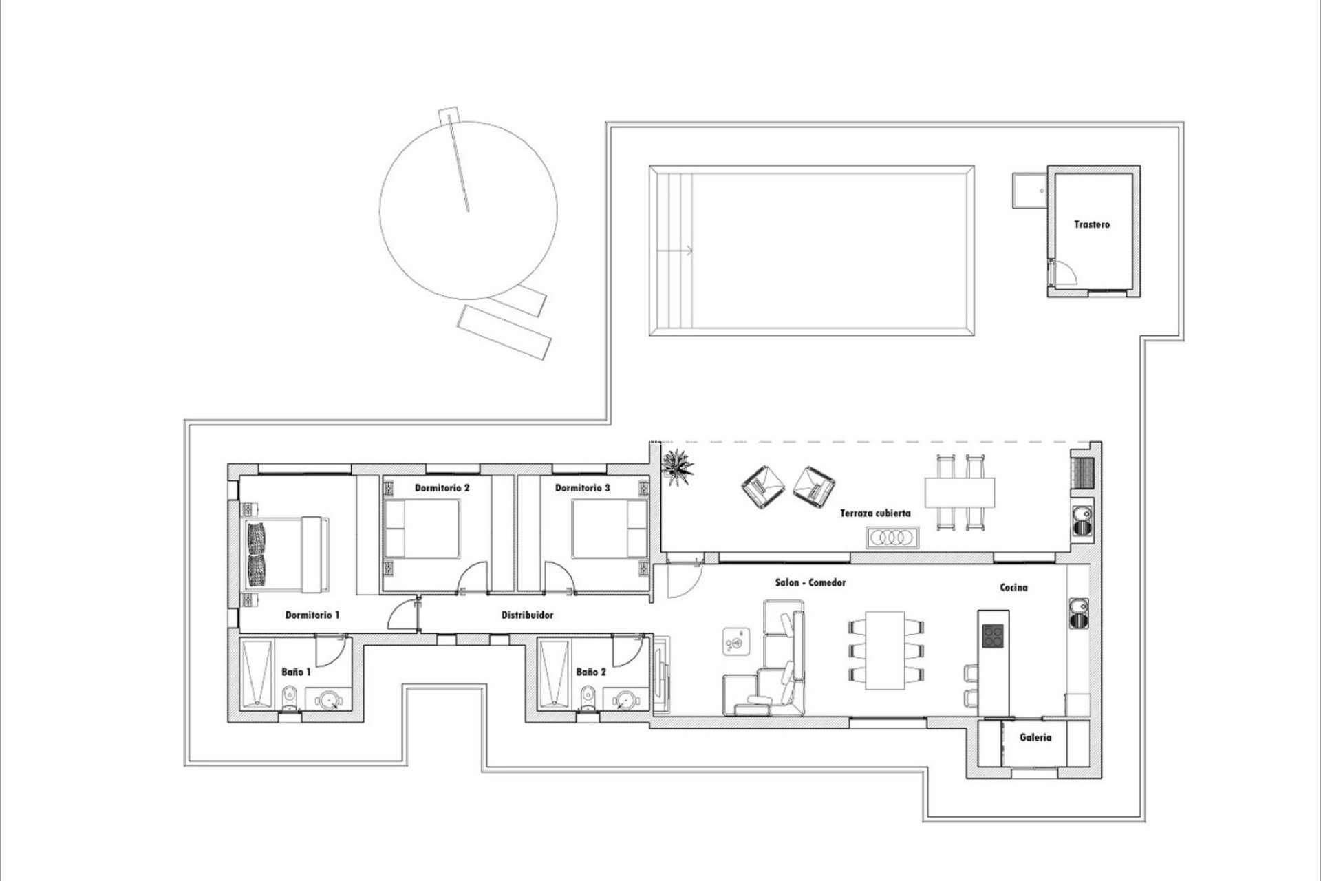
Buyers can choose from a range of customisable villa models with 2, 3, or 4 bedrooms, each project is carefully designed to suit your needs and the selected rustic plot of at least 10,000 m², providing exceptional space, privacy, and countryside living.
The final price is determined by the chosen model and plot, always guaranteeing high-quality materials, finishes, and contemporary design. PLEASE NOTE THAT THE PLOT IS NOT INCLUDED IN THE PRICE.
Included features:
2,500 m² fenced area with automatic sliding entrance gate
Private 8 × 4 m swimming pool with LED lighting, outdoor shower, and pump room
Aluminium windows with motorised shutters and Climalit glazing
Built-in wardrobes in bedrooms
Fully equipped bathrooms with shower screens, furniture, and LED mirrors
Fully fitted kitchen with Silestone or similar worktops
Video intercom
Pre-installation for ducted air conditioning (hot/cold)
Aerothermal hot water system
Pre-installation for future solar panels
Enjoy the authentic Mediterranean lifestyle in Aspe, just 15 minutes from Elche, 25 minutes from Alicante, with the airport nearby and the Costa Blanca beaches a short drive away.
This is a unique opportunity to design your dream home surrounded by nature, tranquillity, and sunshine all year round.